| Комплектация - материал | Профбрус 140*190 сухой Фото материала. | Каркас 150мм. на винтовых сваях Фото материала. | Бревно 24см Фото материала. |
| Коробка без внешней отделки | 3060000р. | 2754000р. | 3264000р. |
| Коробка с внешней отделкой | 4284000р. | 3740000р. | 4488000р. |
| УАЙТ-БОКС (под чистовую отделку) | 7752000р. | 7344000р. | 8058000р. |
| Под ключ (с чистовой отделкой) | 9180000р. | 8568000р. | 9384000р. |
Подробнее о комплектациях (общая информация).


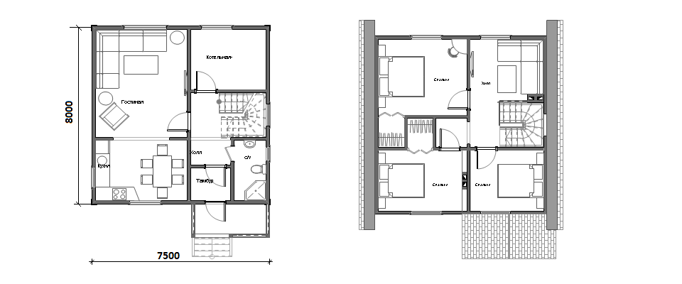
Основная идея проекта «Гектор» - «только то, что необходимо». И действительно, в небольшой (102 кв.м) площади дома поместились теплый тамбур с прихожей, совмещенный санузел, котельная-хозблок, просторная кухня-гостиная, три удобных спальни с гардеробными, верхний холл и лестничная шахта.
Этот проект идеально подойдет тем, кто хочет построить бюджетный дом для постоянного проживания простой снаружи, но функциональный внутри.
Концепция мансардного этажа идеально подойдет для разновозрастных членов семьи. Молодежь, встречая гостей в кухне-гостиной, не будет мешать пожилым родителям проводить время в верхнем холле в соответствии со своим настроением и ритмом жизни.

